Добро пожаловать на http://vipplan.ru

Випплан Люберцы - это тысячи проектов домов в нашем каталоге!

Вы всегда сможете найти для себя проект дома вашей мечты! Даже если этого не случилось, мы готовы в любую минуту предложить проект индивидуального дома.

Забыли пароль?
Вы еще не регистрировались?

Перейдите по ссылке ниже на страницу регистрации.

Регистрация...

Внимание!!!

В проектную документацию могут быть внесены изменения любой сложности, в соответствии в Вашими пожеланиями!

Полезные статьи

Зачем нужен проект дома?

Зачем нужен проект? - спросите вы. Проект дома является важной и неотъемлемой частью при строительстве дома. После покупки проекта, вы получите разрешение на строительство, предоставив его в местную архитектуру, а после, с его помощью, построите дом....

Установка систем вентиляции

Проектирование и установка систем вентиляции начинается на этапе создания проекта дома, в котором, наряду с газо- и электрификацией, водоснабжением и системой канализации, проектируется система вентиляции...

Проекты домов и коттеджей > Каталог проектов домов > Проект дома с мансардой и подвалом Vg1130

Проект дома с мансардой и подвалом Vg1130

Проект дома с мансардой и подвалом
Зарегистрируйтесь

Проект № Vg1130


Техническое описание
Общая площадь: 186.8 м2
Жилая площадь: 73.24 м2
Высота здания: 8.91 м
Размеры дома: 12.72м×8.6м
Кол-во комнат: 5
Цокольный этаж: есть
Гараж: нет
Мансарда: есть

Kонструкция
Фундамент: монолитная ж/б плита
Перекрытия: монолитная ж/б плита
Материал стен: Газобетон

Архитектурный раздел
Конструктивный раздел

Смета на строительство
АР+КР - 60 000 (Со скидкой 20%)
Проект индивидуального одноэтажного жилого дома с мансардой и подвалом с размерами здания 12,72 x 8,6 м. Наружная отделка здания – теплая штукатурка. Фундамент – монолитная ж/б плита под всей площадью дома с ленточным ж/б фундаментом под гаражом и террасой. Наружные стены из пенобетонного блока с облицовкой штукатуркой. Внутренние стены из пенобетонного блока Перегородки из пенобетонного блока Пол подвала – пол по грунту. Пол гаража - пол монолитной плите. Перекрытие подвала и 1-го этажа - монолитная ж/б плита. Крыша двускатная. Кровля – битумная черепица. Окна — металлопластиковые
Генплан застройки участка / Паспорт проекта 7000 руб / 10000 руб
Инженерный раздел (полный) 93500 руб
Смета на строительство 35063 руб (46750 руб)
Теплотехнический расчет материалов стен Бесплатно
Стоимость проекта со незначительнми изменениями 70300 руб
Стоимость проекта со средними изменениями* 84400 руб
Стоимость проекта со значительными изменениями** 88100 руб

План цокольного этажа


Тамбур — 5,78 м2
Холл — 4,53 м2
Гостиная — 19,19 м2
Кухня — 9,52 м2
Кабинет — 12,87 м2
С/у — 3,29 м2
Гараж — 18,00 м2

План первого этажа


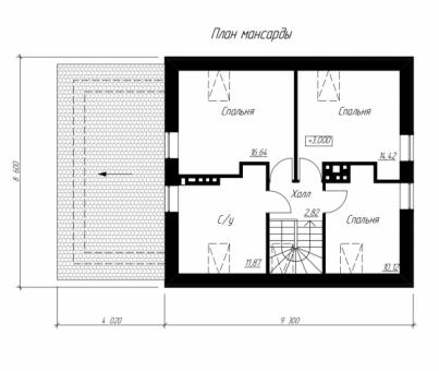
Холл — 2,82 м2
Спальня — 16,64 м2
Спальня — 14,42 м2
Спальня — 10,12 м2
С/у — 11,87 м2

План мансардного этажа



Проект дома с мансардой и подвалом Проект дома с мансардой и подвалом Проект дома с мансардой и подвалом Проект дома с мансардой и подвалом
Внесение изменений и привязка к участку строительства

В любой из проектов от компании VIPplan - Люберцы по вашему желанию могут быть внесены изменения в материалы стен, материалы наружной отделки дома, а также будет произведена адаптация проекта под конкретный регион строительства (с учетом грунтов региона, геологических особенностей вашего участка и местных климатических условий) - БЕСПЛАТНО !!! (кроме проектов со скидкой и проектов наших партнеров).

Любой из проектов, размещенных на сайте lyubertsyi.vipplan.ru мы можем выполнить из требуемых вам строительных материалов: ячеистый бетон (газобетон, пеноблок), керамоблок, кирпич, шлакоблок, бетонный блок, дерево (брус, клееный брус), каркасная технология (деревянный каркас, металлокаркас (ЛСТК)).

Фасад дома и его наружную отделку так же возможно выполнить с применением различных облицовочных материалов: структурной штукатурки, (с утеплителем и без), сайдингом (пластиковый или металлосайдинг), фиброплитами, кирпича.

 
6 Избранные
проекты

Доставка проектов по России: Москва (Московская область), Санкт-Петербург (Ленинградская область), Краснодар, Ростов-на-Дону, Ставрополь, Сочи, Волгоград, Новосибирск, Белгород, Брянск, Воронеж, Саратов, Хабаровск, Астрахань, Нальчик, Владикавказ, Екатеринбург, Тюмень, Самара, Нижний Новгород, Казань, Пермь, Уфа, Челябинск, Красноярск, Ханты-Мансийск, Иркутск, Курган, Оренбург, Омск, Томск, Барнаул, Новокузнецк, Кемерово, Абакан, Чита, Якутск, Южно-Сахалинск, Петропавловск-Камчатский и страны ближнего зарубежья: Белоруссия, Украина, Казахстан