Добро пожаловать на http://vipplan.ru

Випплан Люберцы - это тысячи проектов домов в нашем каталоге!

Вы всегда сможете найти для себя проект дома вашей мечты! Даже если этого не случилось, мы готовы в любую минуту предложить проект индивидуального дома.

Забыли пароль?
Вы еще не регистрировались?

Перейдите по ссылке ниже на страницу регистрации.

Регистрация...

Внимание!!!

В проектную документацию могут быть внесены изменения любой сложности, в соответствии в Вашими пожеланиями!

Полезные статьи

Как сделать мансардную крышу

Мансарда - обеспечивает дополнительную жилую площадь одно- или двухуровневой постройке за счет подкровельного пространства и, благодаря видимым элементам конструкции крыши, выполняет немаловажную эстетическую функцию. Дома с мансардой достаточно распространены в Московской области благодаря своей привлекательности и неповторимости. ...

Советы по проектированию дома

Представляем Вашему вниманию несколько советов по проектированию дома. Все что касается выбора участка, размещению дома на участке, подбора проекта на строительство дома, советы по выбору технологии строительства и материалов и т.д....

Проекты домов и коттеджей > Каталог проектов домов > Симпатичный одноэтажный коттедж с мансардой Vg1132

Симпатичный одноэтажный коттедж с мансардой Vg1132

Симпатичный одноэтажный коттедж с мансардой
Зарегистрируйтесь

Проект № Vg1132


Техническое описание
Общая площадь: 157.31 м2
Жилая площадь: 89.74 м2
Высота здания: 9.35 м
Размеры дома: 12.48м×9.48м
Кол-во комнат: 5
Цокольный этаж: нет
Гараж: нет
Мансарда: есть

Kонструкция
Фундамент: монолитная ж/б плита
Перекрытия: сборные ж/б плиты
Материал стен: Керамоблок

Архитектурный раздел
Конструктивный раздел
АР+КР - 56 000 (Со скидкой 20%)
Проект индивидуального одноэтажного жилого дома с мансардой с размерами здания 12,48 x 9,48 м. Наружная отделка здания – теплая штукатурка. Фундамент – монолитная ж/б плита под всей площадью дома. Наружные стены из керамического блока с облицовкой штукатуркой. Внутренние стены из керамического блока Перегородки из рядового кирпича. Пол первого этажа - пол монолитной плите. Межэтажное перекрытие — сборные ж/б плиты перекрытия. Крыша четырехскатная. Кровля – битумная черепица. Окна — металлопластиковые
Генплан застройки участка / Паспорт проекта 7000 руб / 10000 руб
Инженерный раздел (полный) 78500 руб
Смета на строительство 39250 руб
Теплотехнический расчет материалов стен Бесплатно
Стоимость проекта со незначительнми изменениями 66050 руб
Стоимость проекта со средними изменениями* 77900 руб
Стоимость проекта со значительными изменениями** 81000 руб

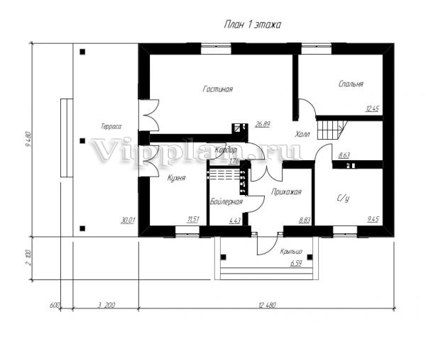
План первого этажа


Прихожая — 8,83 м2
Холл — 8,63 м2
Гостиная — 26,89 м2
Спальня — 12,45 м2
Коридор — 1,76 м2
Кухня — 11,51 м2
Бойлерная — 4,43 м2
С/у — 9,45 м2

План мансардного этажа


Холл — 12,26 м2
Спальня — 16,28 м2
Спальня — 21,37 м2
Спальня — 12,75 м2
С/у — 10,70 м2
Симпатичный одноэтажный коттедж с мансардой Симпатичный одноэтажный коттедж с мансардой Симпатичный одноэтажный коттедж с мансардой Симпатичный одноэтажный коттедж с мансардой
Внесение изменений и привязка к участку строительства

В любой из проектов от компании VIPplan - Люберцы по вашему желанию могут быть внесены изменения в материалы стен, материалы наружной отделки дома, а также будет произведена адаптация проекта под конкретный регион строительства (с учетом грунтов региона, геологических особенностей вашего участка и местных климатических условий) - БЕСПЛАТНО !!! (кроме проектов со скидкой и проектов наших партнеров).

Любой из проектов, размещенных на сайте lyubertsyi.vipplan.ru мы можем выполнить из требуемых вам строительных материалов: ячеистый бетон (газобетон, пеноблок), керамоблок, кирпич, шлакоблок, бетонный блок, дерево (брус, клееный брус), каркасная технология (деревянный каркас, металлокаркас (ЛСТК)).

Фасад дома и его наружную отделку так же возможно выполнить с применением различных облицовочных материалов: структурной штукатурки, (с утеплителем и без), сайдингом (пластиковый или металлосайдинг), фиброплитами, кирпича.

 
6 Избранные
проекты

Доставка проектов по России: Москва (Московская область), Санкт-Петербург (Ленинградская область), Краснодар, Ростов-на-Дону, Ставрополь, Сочи, Волгоград, Новосибирск, Белгород, Брянск, Воронеж, Саратов, Хабаровск, Астрахань, Нальчик, Владикавказ, Екатеринбург, Тюмень, Самара, Нижний Новгород, Казань, Пермь, Уфа, Челябинск, Красноярск, Ханты-Мансийск, Иркутск, Курган, Оренбург, Омск, Томск, Барнаул, Новокузнецк, Кемерово, Абакан, Чита, Якутск, Южно-Сахалинск, Петропавловск-Камчатский и страны ближнего зарубежья: Белоруссия, Украина, Казахстан