Добро пожаловать на http://vipplan.ru

Випплан Люберцы - это тысячи проектов домов в нашем каталоге!

Вы всегда сможете найти для себя проект дома вашей мечты! Даже если этого не случилось, мы готовы в любую минуту предложить проект индивидуального дома.

Забыли пароль?
Вы еще не регистрировались?

Перейдите по ссылке ниже на страницу регистрации.

Регистрация...

Внимание!!!

В проектную документацию могут быть внесены изменения любой сложности, в соответствии в Вашими пожеланиями!

Полезные статьи

Фундамент под гараж

Обычно фундаменты под гараж делаются из бетонного раствора и заливаются, как монолит. Гаражные фундаменты так же можно укладывать из бетона с применением бутового камня. Такие фундаменты тоже считаются монолитными. В этом случае происходит экономия бетона....

Уклон кровли дома

Чтобы вода быстрее уходила с кровли Вашего дома, скатам необходимо придать уклон, который выражающийся в процентах или градусах и измеряющийся геодезическими инструментами. Уклон кровли обозначает угол наклона ската к горизонту. Чем больше уклон, тем круче крыша. У новомодных зданий наклон кровли делают не очень большим....

Проекты домов и коттеджей > Каталог проектов домов > Проект одноэтажного дома с мансардой Vg2249

Проект одноэтажного дома с мансардой Vg2249

Проект одноэтажного дома с мансардой
Зарегистрируйтесь

Проект № Vg2249


Техническое описание
Общая площадь: 220.66 м2
Жилая площадь: 126.18 м2
Высота здания: 8.52 м
Размеры дома: 16.72м×9.92м
Кол-во комнат: 6
Цокольный этаж: нет
Гараж: нет
Мансарда: есть

Kонструкция
Фундамент: Ленточный
Перекрытия: Монолитные перекрытия
Материал стен: Кирпич

Архитектурный раздел
Конструктивный раздел
Инженерный раздел
АР+КР - 64 000 (Со скидкой 20%)
АР+КР+ИР - 141 350 (Со скидкой 50%)
Модель проекта индивидуального одноэтажного жилого дома с мансардой с размерами здания 16,72 x 9,92 м. Наружная отделка здания – штукатурка. Фундамент – ленточный, монолитный ж/б. Наружные стены – камень керамический крупноформатный «Poromax». Внутренние стены и перегородки - кирпич забутовочный. Пол первого этажа - пол по грунту. Межэтажное перекрытие — монолитное ж/б перекрытие. Крыша многоскатная. Кровля – битумная черепица. Окна — металлопластиковые
Генплан застройки участка / Паспорт проекта 7000 руб / 10000 руб
Инженерный раздел (полный) 77350 руб (110500 руб)
Смета на строительство 55250 руб
Теплотехнический расчет материалов стен Бесплатно
Стоимость проекта со незначительнми изменениями 74450 руб
Стоимость проекта со средними изменениями* 91100 руб
Стоимость проекта со значительными изменениями** 95500 руб

План первого этажа


Тамбур — 5,44 кв м
Холл — 5,03 кв м
Гостиная — 31,62 кв м
Кухня-столовая — 10,88 кв м
Спальня — 10,22 кв м
С/у — 3,37 кв м
Бойлерная — 6,95 кв м
Гараж — 35,52 кв м

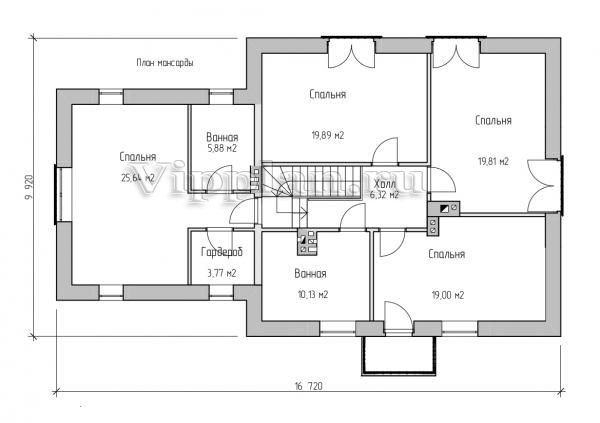
План мансардного этажа


Холл — 6,32 кв м
Спальня — 19,89 кв м
Спальня — 19,81 кв м
Спальня — 19,00 кв м
Ванная — 10,13 кв м
Спальня — 25,64 кв м
Ванная — 5,88 кв м
Гардероб — 3,77 кв м
Проект одноэтажного дома с мансардой Проект одноэтажного дома с мансардой Проект одноэтажного дома с мансардой Проект одноэтажного дома с мансардой

Модификации проектов

Внесение изменений и привязка к участку строительства

В любой из проектов от компании VIPplan - Люберцы по вашему желанию могут быть внесены изменения в материалы стен, материалы наружной отделки дома, а также будет произведена адаптация проекта под конкретный регион строительства (с учетом грунтов региона, геологических особенностей вашего участка и местных климатических условий) - БЕСПЛАТНО !!! (кроме проектов со скидкой и проектов наших партнеров).

Любой из проектов, размещенных на сайте lyubertsyi.vipplan.ru мы можем выполнить из требуемых вам строительных материалов: ячеистый бетон (газобетон, пеноблок), керамоблок, кирпич, шлакоблок, бетонный блок, дерево (брус, клееный брус), каркасная технология (деревянный каркас, металлокаркас (ЛСТК)).

Фасад дома и его наружную отделку так же возможно выполнить с применением различных облицовочных материалов: структурной штукатурки, (с утеплителем и без), сайдингом (пластиковый или металлосайдинг), фиброплитами, кирпича.

 
6 Избранные
проекты

Доставка проектов по России: Москва (Московская область), Санкт-Петербург (Ленинградская область), Краснодар, Ростов-на-Дону, Ставрополь, Сочи, Волгоград, Новосибирск, Белгород, Брянск, Воронеж, Саратов, Хабаровск, Астрахань, Нальчик, Владикавказ, Екатеринбург, Тюмень, Самара, Нижний Новгород, Казань, Пермь, Уфа, Челябинск, Красноярск, Ханты-Мансийск, Иркутск, Курган, Оренбург, Омск, Томск, Барнаул, Новокузнецк, Кемерово, Абакан, Чита, Якутск, Южно-Сахалинск, Петропавловск-Камчатский и страны ближнего зарубежья: Белоруссия, Украина, Казахстан