Добро пожаловать на http://vipplan.ru

Випплан Люберцы - это тысячи проектов домов в нашем каталоге!

Вы всегда сможете найти для себя проект дома вашей мечты! Даже если этого не случилось, мы готовы в любую минуту предложить проект индивидуального дома.

Забыли пароль?
Вы еще не регистрировались?

Перейдите по ссылке ниже на страницу регистрации.

Регистрация...

Внимание!!!

В проектную документацию могут быть внесены изменения любой сложности, в соответствии в Вашими пожеланиями!

Полезные статьи

Искусственный камень

Среди современных материалов, особого внимания заслуживает искусственный камень. Естественность и красота натурального камня очевидна. Но нужно реально оценивать свои возможности и присмотреться именно к искусственному камню, так как сам искуственный камень и стоимость производства работ с ним в Люберцах значительно дешевле чем натуральный....

Уклон кровли дома

Чтобы вода быстрее уходила с кровли Вашего дома, скатам необходимо придать уклон, который выражающийся в процентах или градусах и измеряющийся геодезическими инструментами. Уклон кровли обозначает угол наклона ската к горизонту. Чем больше уклон, тем круче крыша. У новомодных зданий наклон кровли делают не очень большим....

Проекты домов и коттеджей > Каталог проектов домов > Двухэтажный дом, гаражом на 2 машины и балконами Vg2449

Двухэтажный дом, гаражом на 2 машины и балконами Vg2449

Двухэтажный дом, гаражом на 2 машины и балконами
Зарегистрируйтесь

Проект № Vg2449


Техническое описание
Общая площадь: 224.93 м2
Жилая площадь: 128.57 м2
Высота здания: 9.02 м
Размеры дома: 16.9м×10.1м
Кол-во комнат: 6
Цокольный этаж: нет
Гараж: нет
Мансарда: нет

Kонструкция
Фундамент: монолитная ж/б плита
Перекрытия: пол по монолитной плите, монолитные ж/б плиты
Материал стен: Кирпич

Архитектурный раздел
Конструктивный раздел
Инженерный раздел
АР+КР - 64 000 (Со скидкой 20%)
АР+КР+ИР - 142 750 (Со скидкой 50%)
Модель проекта индивидуального двухэтажного жилого дома с с размерами здания 16,9х10,1 м. Наружная отделка здания – облицовочный кирпич. Фундамент – монолитная ж/б плита. Наружные стены – рядовой кирпич, пенополистирол, технологический зазор, облицовочный кирпич. Внутренние стены и перегородки - кирпичные. Пол 1 этажа - пол по монолитной плите. Перекрытие второго этажа и чердачное - монолитные ж/б плиты. Крыша многоскатная. Кровля – металлочерепица. Окна — металлопластиковые.
Генплан застройки участка / Паспорт проекта 7000 руб / 10000 руб
Инженерный раздел (полный) 78750 руб (112500 руб)
Смета на строительство 56250 руб
Теплотехнический расчет материалов стен Бесплатно
Стоимость проекта со незначительнми изменениями 74350 руб
Стоимость проекта со средними изменениями* 91300 руб
Стоимость проекта со значительными изменениями** 95800 руб

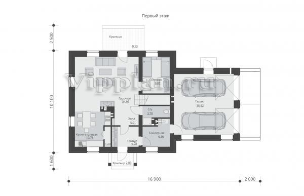
План первого этажа


Тамбур — 5,28 м2
Холл — 5,01 м2
Гостиная — 34,97 м2
Кухня — 10,76 м2
Кладовая — 1,2 м2
Гостевая — 9,87 м2
С/у — 3,78 м2
Бойлерная — 6,36 м2
Гараж — 35,52 м2

Двухэтажный дом, гаражом на 2 машины и балконами

Двухэтажный дом, гаражом на 2 машины и балконами

План второго этажа


Холл — 6,6 м2
Спальня — 19,89 м2
Спальня — 19,67 м2
Спальня — 18,64 м2
Ванная — 10,01 м2
Ванная - 5,88 м2
Гардероб — 3,78 м2
Спальня — 25,53 м2
Двухэтажный дом, гаражом на 2 машины и балконами Двухэтажный дом, гаражом на 2 машины и балконами Двухэтажный дом, гаражом на 2 машины и балконами Двухэтажный дом, гаражом на 2 машины и балконами

Модификации проектов

Внесение изменений и привязка к участку строительства

В любой из проектов от компании VIPplan - Люберцы по вашему желанию могут быть внесены изменения в материалы стен, материалы наружной отделки дома, а также будет произведена адаптация проекта под конкретный регион строительства (с учетом грунтов региона, геологических особенностей вашего участка и местных климатических условий) - БЕСПЛАТНО !!! (кроме проектов со скидкой и проектов наших партнеров).

Любой из проектов, размещенных на сайте lyubertsyi.vipplan.ru мы можем выполнить из требуемых вам строительных материалов: ячеистый бетон (газобетон, пеноблок), керамоблок, кирпич, шлакоблок, бетонный блок, дерево (брус, клееный брус), каркасная технология (деревянный каркас, металлокаркас (ЛСТК)).

Фасад дома и его наружную отделку так же возможно выполнить с применением различных облицовочных материалов: структурной штукатурки, (с утеплителем и без), сайдингом (пластиковый или металлосайдинг), фиброплитами, кирпича.

 
6 Избранные
проекты

Доставка проектов по России: Москва (Московская область), Санкт-Петербург (Ленинградская область), Краснодар, Ростов-на-Дону, Ставрополь, Сочи, Волгоград, Новосибирск, Белгород, Брянск, Воронеж, Саратов, Хабаровск, Астрахань, Нальчик, Владикавказ, Екатеринбург, Тюмень, Самара, Нижний Новгород, Казань, Пермь, Уфа, Челябинск, Красноярск, Ханты-Мансийск, Иркутск, Курган, Оренбург, Омск, Томск, Барнаул, Новокузнецк, Кемерово, Абакан, Чита, Якутск, Южно-Сахалинск, Петропавловск-Камчатский и страны ближнего зарубежья: Белоруссия, Украина, Казахстан