Добро пожаловать на http://vipplan.ru

Випплан Люберцы - это тысячи проектов домов в нашем каталоге!

Вы всегда сможете найти для себя проект дома вашей мечты! Даже если этого не случилось, мы готовы в любую минуту предложить проект индивидуального дома.

Забыли пароль?
Вы еще не регистрировались?

Перейдите по ссылке ниже на страницу регистрации.

Регистрация...

Внимание!!!

В проектную документацию могут быть внесены изменения любой сложности, в соответствии в Вашими пожеланиями!

Полезные статьи

Проекты быстровозводимых домов и коттеджей в Люберцах

Некоторые люди до сих пор считают, что быстровозводимые дома представляют собой безликие, недолговечные, однотипные строения. Эти утверждения не соответствуют действительности. На данный момент, строительные технологии шагнули вперед и дома «быстрого приготовления» считаются эталоном комфорта, уюта и даже выделяются, в архитектурном плане, на фоне дорогих кирпичных коттеджей. Быстровозводимые дома не дорогие и изготавливаются в кратчайшие сроки....

Правильная изоляция подвала

Какой выбрать материал, как правильно выполнить работу, перед началом изоляции подвала какие подготовительно-строительные работы следует провести и какой момент играет правильное выполнение работ. Последние несколько лет придали много хлопот жильцам домов, увлажнив им подвалы. Этот период показал насколько важно обеспечить надлежащую защиту зданий от грунтовых вод и воздействия влаги....

Проекты домов и коттеджей > Каталог проектов домов > Проект одноквартирного дома с мансардой Vg989

Проект одноквартирного дома с мансардой Vg989

Проект одноквартирного дома с мансардой
Зарегистрируйтесь

Проект № Vg989


Техническое описание
Общая площадь: 171.52 м2
Жилая площадь: 71 м2
Высота здания: 7.91 м
Размеры дома: 16.23м×12.93м
Кол-во комнат: 6
Цокольный этаж: нет
Гараж: нет
Мансарда: есть

Kонструкция
Фундамент: Свайно-ростверковый
Перекрытия: Деревянные балки
Материал стен: Газобетон

Архитектурный раздел
Конструктивный раздел
АР+КР - 56 000 (Со скидкой 20%)
Проект индивидуального двухэтажного одноквартирного жилого дома с размерами 16,23x12,93м. Наружная отделка здания -фасадная штукатурка. Цоколь- камень. Фундамент - свайно-ростверковый. Наружные стены запроектированы из: газобетонных блоков, пеноплекса и штукатурки. Внутренние стены и перегородки -из газобетонных блоков. Перемычки - монолитные и сварные из профиля проката. Перекрытия над первым этажом – по деревянным балкам. Пол первого этажа - пол по грунту. Крыша - двускатная. Материал кровли - металлочерепица. Окна - металлопластиковые, выполненные по индивидуальному заказу. Лестница выполняется по индивидуальному заказу.
Генплан застройки участка / Паспорт проекта 7000 руб / 10000 руб
Инженерный раздел (полный) 86000 руб
Смета на строительство 43000 руб
Теплотехнический расчет материалов стен Бесплатно
Стоимость проекта со незначительнми изменениями 65700 руб
Стоимость проекта со средними изменениями* 78600 руб
Стоимость проекта со значительными изменениями** 82000 руб

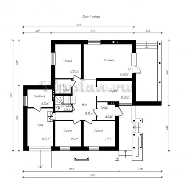
План первого этажа


Тамбур - 4,13 м2
Холл - 15,32 м2
Гостиная - 22,81 м2
Кухня - 10,00 м2
Спальня - 12,07 м2
С/у - 3,21 м2
Кладовая - 3,39 м2
Спальня - 9,13 м2
Спальня - 11,17 м2
Бойлерная - 6,15 м2
Гараж - 13,39 м2

План мансардного этажа


Холл - 6,10 м2
Комната отдыха - 25,07 м2
Кабинет - 20,18 м2
С/у - 9,41 м2
Проект одноквартирного дома с мансардой Проект одноквартирного дома с мансардой Проект одноквартирного дома с мансардой Проект одноквартирного дома с мансардой

Модификации проектов

Внесение изменений и привязка к участку строительства

В любой из проектов от компании VIPplan - Люберцы по вашему желанию могут быть внесены изменения в материалы стен, материалы наружной отделки дома, а также будет произведена адаптация проекта под конкретный регион строительства (с учетом грунтов региона, геологических особенностей вашего участка и местных климатических условий) - БЕСПЛАТНО !!! (кроме проектов со скидкой и проектов наших партнеров).

Любой из проектов, размещенных на сайте lyubertsyi.vipplan.ru мы можем выполнить из требуемых вам строительных материалов: ячеистый бетон (газобетон, пеноблок), керамоблок, кирпич, шлакоблок, бетонный блок, дерево (брус, клееный брус), каркасная технология (деревянный каркас, металлокаркас (ЛСТК)).

Фасад дома и его наружную отделку так же возможно выполнить с применением различных облицовочных материалов: структурной штукатурки, (с утеплителем и без), сайдингом (пластиковый или металлосайдинг), фиброплитами, кирпича.

 
6 Избранные
проекты

Доставка проектов по России: Москва (Московская область), Санкт-Петербург (Ленинградская область), Краснодар, Ростов-на-Дону, Ставрополь, Сочи, Волгоград, Новосибирск, Белгород, Брянск, Воронеж, Саратов, Хабаровск, Астрахань, Нальчик, Владикавказ, Екатеринбург, Тюмень, Самара, Нижний Новгород, Казань, Пермь, Уфа, Челябинск, Красноярск, Ханты-Мансийск, Иркутск, Курган, Оренбург, Омск, Томск, Барнаул, Новокузнецк, Кемерово, Абакан, Чита, Якутск, Южно-Сахалинск, Петропавловск-Камчатский и страны ближнего зарубежья: Белоруссия, Украина, Казахстан